Exhibit 10.5 (c)
Tallgrass Office Lease
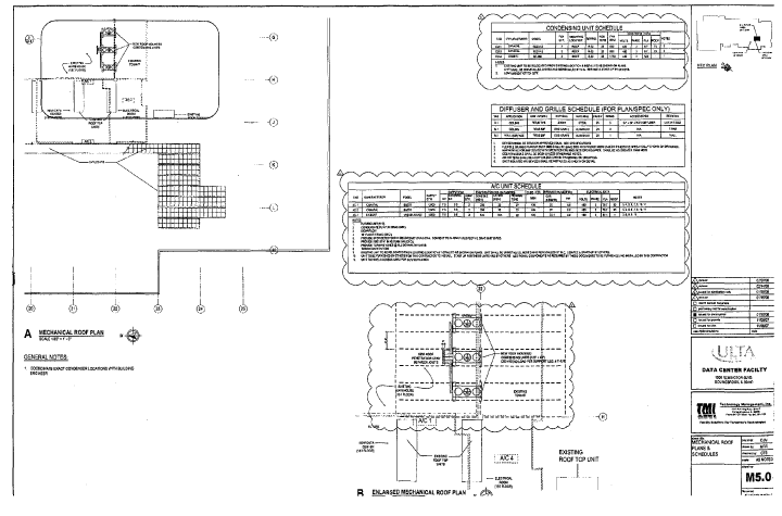
[hvac Equipment]
THIRD AMENDMENT TO LEASE
     This Third Amendment to Lease (this “Amendment”) is made and entered into as of this 24th day of March 2008 by and between BOLINGBROOK INVESTORS, LLC, an Illinois limited liability company (“Landlord”), and ULTA SALON, COSMETICS & FRAGRANCE, INC., a Delaware corporation (“Tenant”).
Recitals
     A. Tenant has leased those certain Premises consisting of 82,468 rentable square feet (the “Premises”) in the Building located at 1000 Remington Boulevard, Bolingbrook, Illinois (the “Building”), pursuant to the terms and conditions contained in that certain Office Lease entered into by and between Tenant and Landlord dated April 17, 2007 as amended by that Amendment to Lease dated November 2007 and that Second Amendment to Lease dated February 20, 2008 (as hereby amended, referred to herein as the “Lease”) by and between Landlord and Tenant.
     B. Landlord and Tenant desire to amend the Lease to allow installation of HVAC Equipment (as hereinafter defined) and for certain other purposes.
Agreements
     Now, Therefore, in consideration of the recitals, rent paid and to be paid to Landlord and the covenants to be performed in accordance with the terms and conditions hereinafter contained, Landlord and Tenant do hereby agree as follows:
     1. Access to Roof and Installation of HVAC Equipment. So long as the Lease is in effect, Landlord grants to Tenant the right to install and maintain heating, ventilation and air conditioning equipment, as more particularly described on Exhibit A attached hereto and made a part hereof (the “Equipment”), and cables, conduit, and other related incidental items within utility chases and risers between the Premises and the roof as approved by Landlord (collectively referred to herein as the “HVAC Equipment”), in accordance with all the terms and provisions of this Amendment.
          (a) Tenant shall bear all costs of installation of the HVAC Equipment, including Landlord-approved modifications required for the installation and costs of fulfilling all the requirements set forth in this Amendment.
          (b) Landlord shall approve the actual location of the HVAC Equipment. Notwithstanding the foregoing, Landlord acknowledges that it has already approved and shall allow Tenant to install said HVAC Equipment in the location referenced on Exhibit A.
          (c) Before commencing construction of the HVAC Equipment, Tenant shall provide Landlord with plans and specifications for the HVAC Equipment, its location, and its means of attachment to the Building, which plans shall be subject to the approval of Landlord in its sole and absolute discretion. Notwithstanding the foregoing, Landlord acknowledges that it has already received and approved Tenant’s plans and specifications with respect to the HVAC Equipment prepared by Technology Management, Inc. dated February 20, 2008. In no event shall any approvals given by Landlord with respect to the construction or the installation of the HVAC Equipment, or which Landlord has the right to give, nor the right of Landlord to supervise the installation of the HVAC Equipment, constitute any warranty by Landlord of the adequacy, workmanship or quality of the HVAC Equipment, nor impose upon Landlord any liability in connection with the HVAC Equipment. Landlord makes no representation and shall have no obligation with respect to the suitability of the roof for the installation

 


 

and use of the HVAC Equipment. Landlord shall be entitle to supervise Tenant’s installation of the HVAC Equipment.
          (d) Access to the roof, cables, mechanical rooms or other areas of the Building and all work undertaken by Tenant shall be, in each instance, with reasonable prior notice to Landlord and in the presence of an employee or agent of Landlord, and shall otherwise be in accordance with Landlord’s required procedures and regulations.
          (e) Tenant shall secure all necessary building permits, consents and any other approvals of federal, state or local agency or government authority required for the HVAC Equipment installation, shall provide copies of same to Landlord, and shall comply with all requirements of any such agency or authority and all other legal requirements, including, but not limited to, height restrictions and screening requirements. Tenant shall provide Landlord all installation specifications and drawings required for the securing of said permits, consents and approvals.
          (f) Installation of the HVAC Equipment shall be performed so as to cause no structural damage to the Building and in a manner that will not affect any roof or other warranty. Any damage to the Building caused by such installation or by the operation or existence of the HVAC Equipment shall be repaired by Tenant immediately. At the termination of the Lease by expiration of time or otherwise, at the option of Landlord given by written notice thereof to Tenant no later than sixty (60) days prior to the expiration of the Term, Tenant, at its sole cost and expense, shall remove the HVAC Equipment and all related equipment and shall restore the Building to its condition existing prior to the installation of the HVAC Equipment. Tenant shall further immediately repair, at its sole cost and expense, any damage or destruction caused by the removal of the HVAC Equipment. Restoration and repair hereby required to be performed by Tenant shall be completed under the supervision of Landlord or Landlord’s agent at such time and in such manner as is acceptable to Landlord. If Tenant fails to perform any required repairs or remove any HVAC Equipment required to be removed within thirty (30) days (or such longer time period as may be reasonably necessary so long as Tenant has commenced such repairs within said thirty (30) day period) after written notice thereof, then Landlord shall have the right to perform any repairs and removal and restoration, at Tenant’s sole cost and expense, and such expense shall be reimbursed to Landlord promptly upon demand together with an administrative charge of fifteen percent (15%) of the cost thereof. Notwithstanding anything contained herein, Tenant shall not remove, and shall not be reimbursed for the cost of, any component of the HVAC Equipment or ancillary equipment which is affixed to, embedded in or permanently attached in or to the Building including, but not limited to, cables and other wiring, unless Landlord so directs otherwise.
          (g) Tenant agrees that the use of the HVAC Equipment will not endanger or interfere with persons or equipment in the Building or surrounding property. Tenant shall hold the Landlord harmless and shall indemnify and defend the Landlord, its officers, directors, shareholders, partners, members, managers, affiliates, employees and agents from and against all loss, cost, injury, claims, demands and expenses of every kind (including reasonable attorneys’ fees) which arise from or are alleged with respect to Tenant’s exercise of the rights granted under this Amendment or actions pursuant hereto or any breach by Tenant of its obligations under this Amendment.
          (h) Tenant shall insure that the installation is accomplished so that the HVAC Equipment is securely attached to the Building, and Tenant assumes full responsibility for any physical damage to the Building which may be caused in whole or in part by the HVAC Equipment or its support equipment.
          (i) Landlord and its officers, directors, shareholders, partners, members, members, affiliates, agents and employees shall not be liable or responsible to Tenant for any loss or damage to the

2


 

HVAC Equipment or person occasioned by theft, fire, act of God, public enemy, injunction, riot, strike, insurrection, war, court order, or for any damage or inconvenience which may arise through the maintenance, repair or alteration of any part of the Building, or the failure to make such repair. Tenant agrees and acknowledges that Landlord has made no representations or warranties with respect to the physical condition of the roof or any other portion of Building, their suitability for the purpose intended hereunder or any other matter hereunder. Landlord shall not be liable to Tenant for any interference with Tenant’s operation of the HVAC Equipment caused by Landlord’s maintenance, repair or replacement of the roof or any other part of the Building, and Landlord and Tenant shall cooperate with each other so that Landlord can perform its obligations under this Lease.
          (j) The HVAC Equipment shall be used only by Tenant in connection with Tenant’s Premises and shall not include any equipment or be used for the benefit of any other part of the Building.
          (k) The rights of Tenant under this Amendment are not assignable by Tenant and shall benefit only Tenant and not any successors, assigns or sublessees.
          (l) After the initial installation of the HVAC Equipment, Landlord may from time to time cause Tenant to relocate the HVAC Equipment to another portion of the roof of the Building at the sole cost of Tenant.
          (m) HVAC Equipment Relocation. In the event that Landlord requires Tenant to relocate the HVAC Equipment at any time, Tenant, at Tenant’s sole cost and expense, shall so relocate the HVAC Equipment to a location acceptable to Landlord and otherwise in compliance with the requirements of this Amendment within thirty (30) days after a written request by Landlord. If Tenant fails to comply with any relocation request as stated above Landlord may cause the HVAC Equipment to be relocated at Tenant’s expense, and Tenant shall pay any and all costs incurred by Landlord to effectuate such relocation, plus a fifteen percent (15%) administrative fee within ten (10) days after notice from Landlord; provided, however, that in the event Tenant commences to relocate such HVAC Equipment within said thirty (30) day period, it shall have such longer period of time to complete such relocation as is reasonably necessary so long as Tenant is diligently pursuing such relocation.
          (n) Insurance. Tenant hereby agrees to extend its insurance required under the Lease to cover the HVAC Equipment and installation thereof in compliance with the Lease.
     2. Landlord and Tenant Authorization. Landlord and Tenant each represents and warrants to the other that this Amendment has been duly authorized, executed and delivered by and on behalf of each of Landlord and Tenant, as applicable, and constitutes the valid and binding agreement of Landlord and Tenant, as applicable, in accordance with the terms hereof.
     3. Ratification and Construction. The terms and provisions of the Lease as hereby amended are hereby ratified and confirmed in all respects. The definitions of all defined terms as set forth in the Lease shall apply to such terms used in this Amendment except as specifically provided herein to the contrary. The captions and headings used herein are for convenience only and shall not be deemed to limit the terms and provisions of this Amendment.
     4. Counterparts. This Amendment may be executed in multiple counterparts, each of which taken together shall constitute one instrument.
[Signatures Appear on the Following Page]

3


 

     IN WITNESS WHEREOF, the parties have caused this Third Amendment to Lease to be executed as of the date first above written.
                 
LANDLORD:       TENANT:
 
               
BOLINGBROOK INVESTORS, LLC,
an Illinois limited liability company
      ULTA SALON, COSMETICS & FRAGRANCE, INC., a Delaware limited liability company
 
               
By:
  /s/ Joseph I. Neverauskas       By:   /s/ Alex J. Lelli, Jr.
 
               
Name:
  Joseph I. Neverauskas       Name:   Alex J. Lelli, Jr.
Title:
  Senior Vice President       Title:   Senior Vice President
 
              Growth & Development

4


 

EXHIBIT A
EQUIPMENT
[See Attached]

A-1


 

Exhibit A
(IMAGE)